NÄHE KEMPTEN – Sonniges Reihenmittelhaus kernsaniert
680.000 EUR Wiggensbach | Reiheneckhaus | 130m² | 4 ZimmerAus alt mach neu – Premiumversion nach Kernsanierung.
Genießen Sie alle Vorzüge eines Neubaus.
Ursprünglich Baujahr 1972, überzeugt dieses Haus durch eine durchdachte Neugestaltung und Ausführung mit hochwertigen Materialien.
– Wärmepumpe mit Fußbodenheizung
– Photovoltaikanlage
– Elektrik neu
– Wasserrohre erneuert
– Überarbeitung der Treppen
– 3-fach verglaste bodentiefe Fenster – große Fensterfronten
– elektrisch betreibene Rollläden
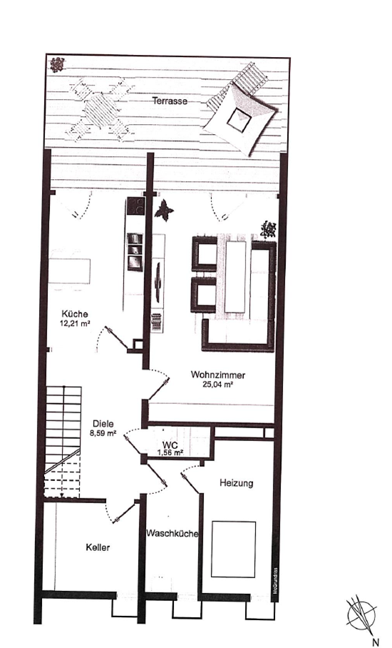
– Terrassen-Schiebetüre im Wohnzimmer
– sehr große Terrasse
– Fischgrätparkett
– Feinputz im Innenraum
– ebenerdige Dusche und Badewanne
– Waschkeller
Noch können Wünsche des Erwerbers berücksichtigt werden.
Das Gebäude ist ab Mai bezugsfähig.
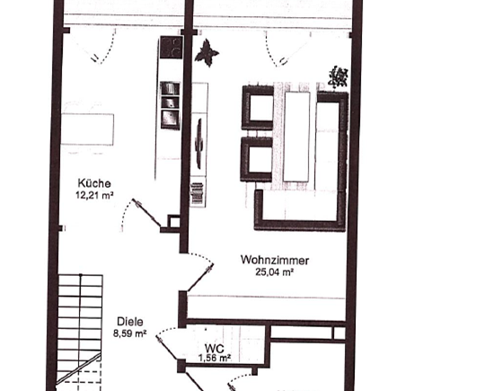
Durch eine Hanglage sind Wohnzimmer und Küche im UG untergebracht. Zusaätzlich sind noch Kellerräume für Heizung und Stauraum vorhanden.
Ein schöner Gartenbereich mit freiem Blick nach Süden erweitert optisch den Wohnbereich.
Ein größerer Vorgarten bietet zusätzlich Gestaltungsmöglichkeiten.
Zwei Stellplätze und eine Einzelgarage runden unser Angebot ab.
Der Energieausweis wird nach der Sanierung neu erstellt – Effizienzklasse B wird erwartet.
Gerne vereinbaren wir einen Besichtigungstermin – überzeugen Sie sich.
Ich freue mich auf Ihren Anruf.
LAGE
Wiggensbach: 8-10 km westlich von Kempten, gute Anbindung nach Kempten
Vor Ort gibt es Grundschule, Kindergarten, mehrere Arztpraxen, Hallen- und Freibad, Vielzahl an Geschäften, mittelständische Handwerks- und Gewerbebetriebe
Kempten
Die Allgäumetropole Kempten mit 70.000 Einwohnern liegt mitten im Allgäu eingebettet in eine reizvolle Hügellandschaft. Die Stadtgeschichte geht 2000 Jahre zurück.
Als sehr erfolgreicher Wirtschaftsstandort – Milchwirtschaft, Maschinenbau, und Verpackungsindustrie verfügt die Stadt auch über eine Fachhochschule mit derzeit über 6000 Studenten in verschiedenen Fachrichtungen.
Kempten stellt sich als großes Kultur- und Freizeitzentrum dar, in der auch das Allgäuer Brauchtum nicht zu kurz kommt.
Durch die geographische Lage und die direkte Anbindung an die A7 sind Österreich, die Schweiz und Liechtenstein in einer Autostunde zu erreichen. Memmingen (45 Km) und München (150 km) sind die nächsten Flughäfen.
Alle Angaben stammen vom Verkäufer – daher keine Haftung und Gewähr auf deren Richtigkeit.
| Verfügbar ab: | ab sofort |
| Kaufpreis: | 680.000 EUR |
| Provision für Käufer: | 3,57% incl. MwSt. |
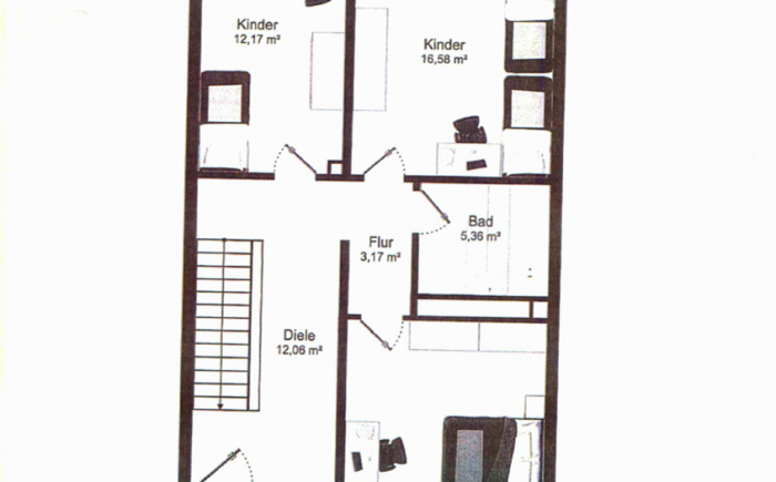
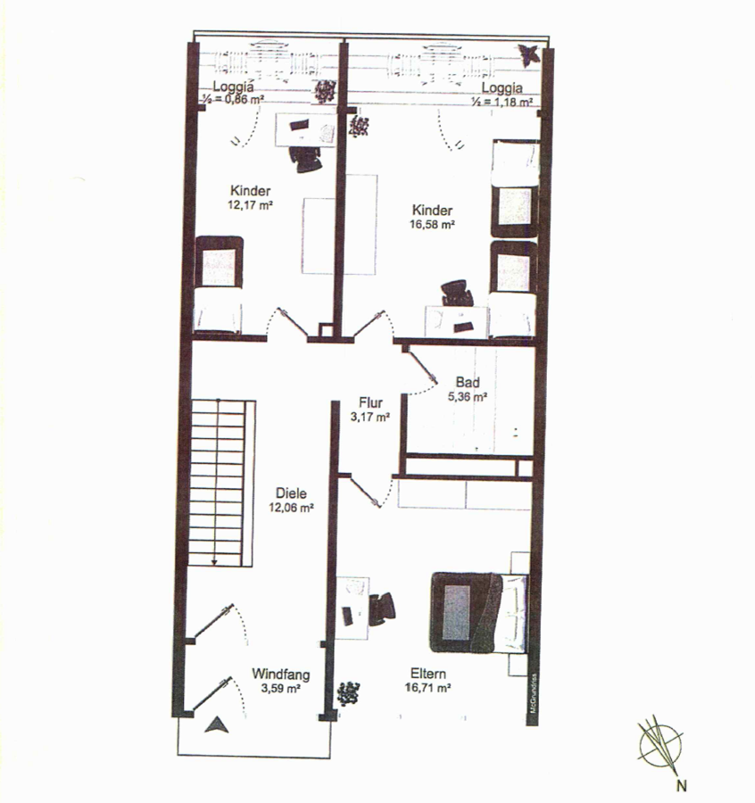
| Zimmer: | 4 |
| Schlafzimmer: | 3 |
| Badezimmer: | 1 |
| Wohnfläche: | 130 m² |
| Grundstücksfläche: | 404 m² |
| Gesamtfläche: | 149 m² |
| Etagen: | 2 |
| Baujahr: | (1972) 2025/26 |
| Letzte Renovierung: | 2026 |
| Objektzustand: | kernsaniert |
| Ausstattungskategorie: | hochwertig |
| Heizungsart: | Zentralheizung |
| Befeuerungsart: | Luft-Wärmepumpe |
| Baujahr lt. Energieausweis: | 2025 |





