ISNY zentral – 4-Zimmer-Dachgeschosswohnung – großer Westbalkon – provisionsfrei
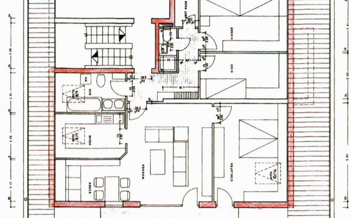
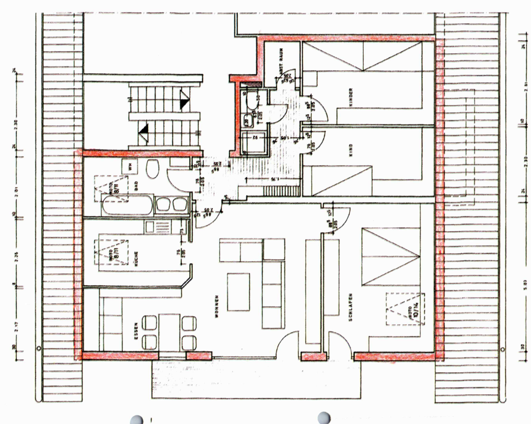
329.000 EUR Isny | Dachgeschosswohnung | 80 DIN m² | 4 ZimmerFamilientauglich – eignet sich aber auch als sichere Anlage.
Das Haus stammt aus dem Jahr 1980, wurde aber fortlaufend renoviert.
Die Wohnanlage steht inmitten eines 2000 m² großen Grundstücks, das bedeutet viel Freiraum.
Die Wohnung befindet sich im Dachgeschoss – Sie verfügt über einiges mehr an Bodenfläche als die Angabe in DIN angibt.
Herzstück ist der gr0ßzügige Wohn-Essbereich, der von einem großen überdachten Südwest-Balkon mit herrlichem Weitblick ergänzt wird.
Die gemütliche Küche ist ausgestattet mit einer modernen Einbauküche, die im Kaufpreis enthalten ist.
Familienfreundlich sind die zwei Bäder – das große Tageslichtbad mit Wanne und Waschmaschinenplatz und ein kleines Duschbad mit WC.
Als Stauraum eignen sich die beiden zugehörenden Kellerräume und der praktische Abstellraum in der Wohnung.
Im Kaufpreis enthalten ist ein Tiefgaragenstellplatz.
Derzeit ist die Wohnung gut vermietet – 705 Euro Kaltmiete.
Ich hoffe, ich habe Sie neugierig gemacht.
Gerne vereinbaren wir einen Besichtigungstermin.
LAGE
ISNY – zentrale Wohnlage – wenige Gehminuten ins Zentrum und ins Naturschutzgebiet
sehr sonniger Standort – Isny ist eine der sonnenreichsten Städte
Luftkurort 705m ü.M.
Alle Dinge des täglichen Lebens sind fußläufig erreichbar. Kindergarten und Spielplatz in direkter Nachbarschaft, das Schulzentrum ist zu Fuß für die Kids erreichbar.
Die gemütliche, kleine Stadt verfügt über eine gute Infrastruktur. Der Bodensee, Österreich und die Schweiz sind in einer halben Autostunde zu erreichen.
Friedrichshafen, Memmingen und München sind die nächsten Flughäfen.
| Verfügbar ab: | nach Absprache |
| Kaufpreis: | 329.000 EUR |
| Hauskosten: | 351 EUR |
| Monatl. Mieteinnahmen (Soll): | 705 EUR |
| Zimmer: | 4 |
| Schlafzimmer: | 3 |
| Badezimmer: | 2 |
| Kellerräume: | 2 |
| Wohnfläche: | 80 DIN m² |
| Nutzfläche: | 14 m² |
| Etage: | 3 |
| Etagen: | 3 |
| Baujahr: | 1980 |
| Letzte Renovierung: | 2025 |
| Objektzustand: | gepflegt |
| Ausstattungskategorie: | normal |
| Heizungsart: | Zentralheizung |
| Befeuerungsart: | Öl |
| Wert des Endenergiebedarfs: | 95 |
| Art des Energieausweises: | Verbrauchsausweis |
| Energieeffizienzklasse: | D |
| Baujahr lt. Energieausweis: | 2003 |











