MEMMINGEN Teilgemeinde – Bungalow in parkähnlichem Garten
399.000 EUR Memmingen | Einfamilienhaus | 100m² | 4 ZimmerAngekommen – ein Stückchen heile Welt.
Hier wachsen Kinder noch auf wie Kinder aufwachsen sollten.
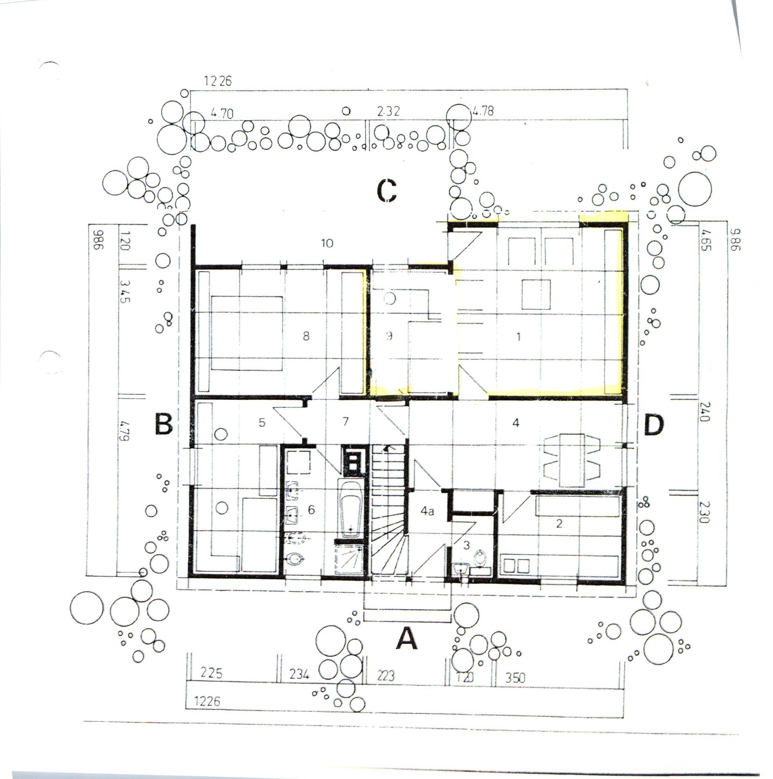
Inmitten eines sehr gepflegten Grundstücks liegt dieses Einfamilienhaus, gebaut im Bungalowstil – barrierefrei.
Vier Zimmer, Küche, und Bad befinden sich alle auf einer Ebene.
Mittelpunkt ist das große Wohnzimmer. Hier ist möglich einen Teil abzutrennen und bei Bedarf ein weiteres Zimmer zu erhalten, zum Beispiel ein weiteres Kinderzimmer.
Die Küche ist ausgestattet mit einer modernen Einbauküche, die im Preis enthalten ist.
Angrenzend an die Küche ist ein gemütlicher Essbereich mit einer eingebauten runden Sitzbank.
Das geräumige Tageslichtbad verfügt über Dusche und Badewanne – zusätzliches separates Gäste-WC.
Das Haus ist voll unterkellert.
Zusätzlichen Wohnraum im Untergeschoss bietet ein ca. 20m² großer Zimmer mit Tageslicht.
Der Dachboden kann als Stauraum genutzt werden.
Durch die optimale Lage des Gebäudes ist die Sonne von morgens bis abends Ihr Begleiter.
Den Sommer können Sie sogar auf zwei Terrassen genießen.
Eine liebevoll gestaltete Laube mit eingepaßter Sitzgelegenheit und Beleuchtung könnte Ihr Lieblingsplatz werden.
Der Garten, eine kleine Oase, ist liebevoll angelegt und sehr gepflegt, ein Paradies für Ihre Kids.
Eine Gartenhütte bietet Stauraum für Räder oder Gartenwerkzeug.
Einen weiteren Pluspunkt bietet die Doppelgarage mit direktem Zugang ins Haus.
Beheizt wir das Gebäude über eine Ölzentralheizung BJ 2021.
Vot etwa 10 Jahren wurde Vollwärmeschutz an das Gebäude angebracht.
Ich freue mich auf Ihren Anruf – gerne bringe ich Ihnen dieses besondere Angebot bei einem Besichtigungstermin näher.
LAGE
Memmingen – Ferthofen – ein beschaulicher und ruhiger Wohnort
schnelle Anbindung an die A7
Ferthofen ist nach Volkratshofen eingegliedert. 1978 wurden die Orte nach Memmingen zugeordnet und bilden eine Teilgemeinde von Memmingen – 8 km entfernt.
Volkratshofen hat einen Kindergarten und eine Grundschule.
Aitrach nur 2 km hat eine Arztpraxis, Zahnarzt und einen Supermarkt.
Halbstündlich fährt ein Bus von Ferthofen nach Memmingen.
Memmingen ist eine kreisfreie Stadt im bayerischen Schwaben mit etwa 44.000 Einwohnern.
Mit ihrem mittelalterlichen Stadtbild, kann die Stadt auf eine 850 Jahre alte Stadtgeschichte zurückblicken. Viele historische Bauten aus seiner Historie lassen sich heute noch bestaunen.
Memmingen ist ein guter Wirtschaftsstandort auch durch seine gute Verkehrsanbindung.
Der Schnittpunkt zwischen der A96 und A7 fördert diesen leistungsfähigen Wirtschaftsstandort.
Österreich und die Schweiz sind in gut einer halben Autostunde zu erreichen.
Wirtschaftlich sehr fördernd ist der Allgäu Airport.
Eine große Auswahl an verschiedenen Schularten, Einkaufsmöglichkeiten, Sport- und Freizeitmöglichkeiten macht die Stadt sehr attraktiv.
Das moderne Klinikum mit Schwerpunktversorgung umfaßt 14 Hauptabteilungen.
| Verfügbar ab: | ab sofort |
| Kaufpreis: | 399.000 EUR |
| Provision für Käufer: | 3,57% incl. MwSt. |
| Zimmer: | 4 |
| Schlafzimmer: | 3 |
| Badezimmer: | 1 |
| Kellerräume: | 1 |
| Wohnfläche: | 100 m² |
| Grundstücksfläche: | 676 m² |
| Baujahr: | 1977 |
| Letzte Renovierung: | 2021 |
| Objektzustand: | gepflegt |
| Ausstattungskategorie: | normal |
| Heizungsart: | Zentralheizung |
| Befeuerungsart: | Öl |
| Wert des Endenergiebedarfs: | 125,1 |
| Art des Energieausweises: | Verbrauchsausweis |
| Energieeffizienzklasse: | D |
| Baujahr lt. Energieausweis: | 20221 |











